- Woonoppervlakte
- Circa 56 m²
- Inhoud
- Circa 175 m³
- Bouwjaar
- Gebouwd in 1935
- Aantal kamers
- 3 kamers (2 slaapkamers)
*ENGLISH TEXT BELOW*
OMSCHRIJVING
Zeer sfeervol driekamerappartement met fantastisch vrij uitzicht op het Rembrandtpark, een ruim balkon en een berging op de zolderverdieping. De Postjeskade is een rustige straat met eenrichtingsverkeer gelegen in het populaire stadsdeel de Baarsjes. De Baarsjes heeft zich de afgelopen jaren ontwikkeld tot een levendige, trendy buurt met een rijke historie. De perfecte mix van rust, groen en stedelijke dynamiek. Met recht een van de leukste buurten van Amsterdam! Het appartement is in de afgelopen jaren compleet gerenoveerd en praktisch ingedeeld, klaar om zo te betrekken. Het maakt onderdeel uit van een actieve en financieel gezonde VvE welke professioneel wordt beheerd. De ligging aan het Rembrandtpark en tal van winkels, OV, gezellige cafés, terrassen en restaurants op loopafstand is fantastisch. Kortom; een kant-en-klaar appartement op een zeer gewilde locatie!
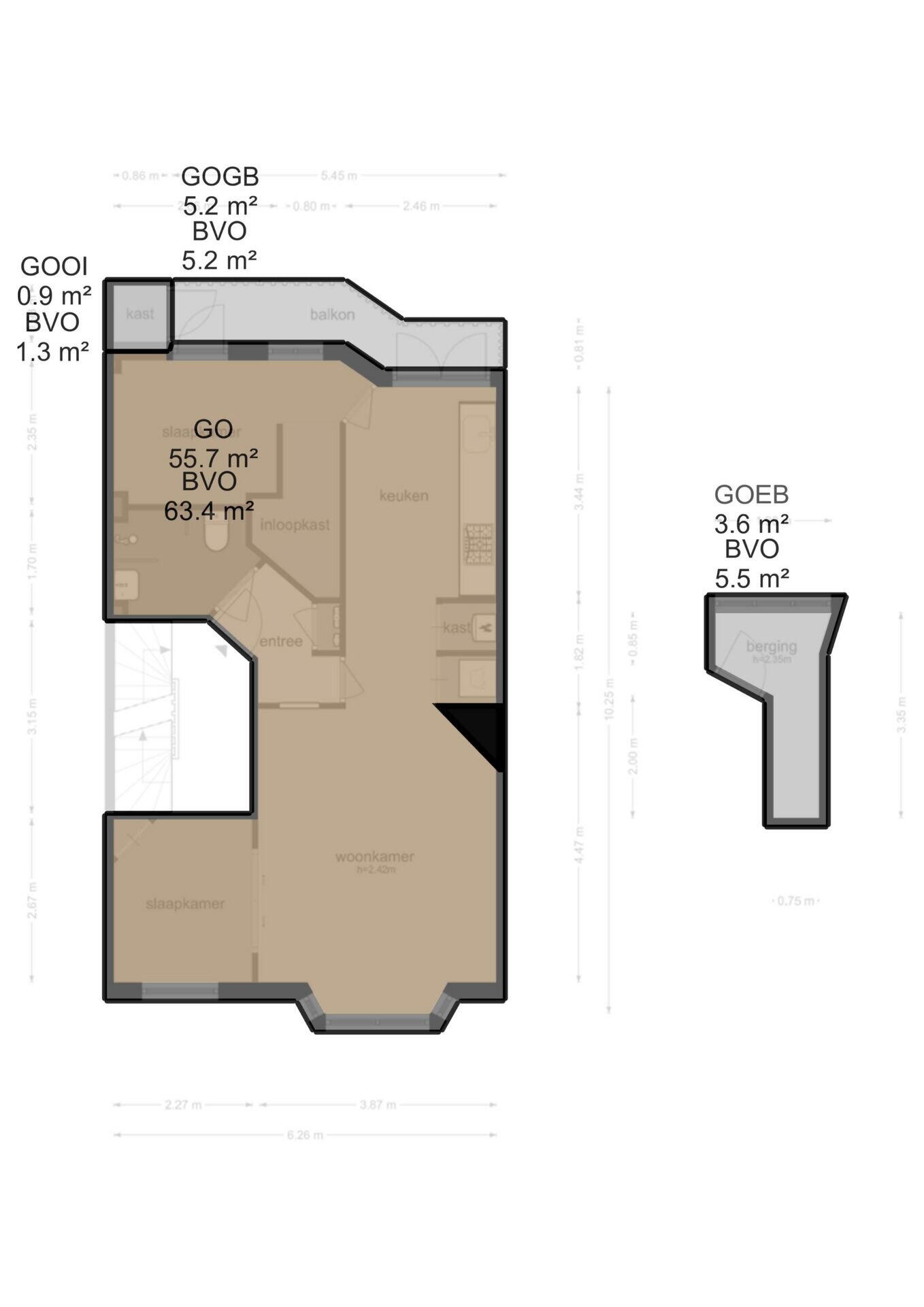
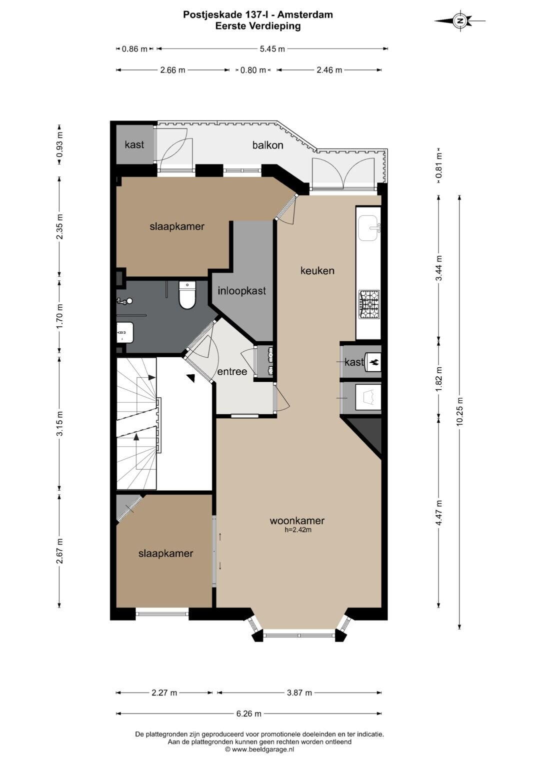
INDELING (zie plattegrond)
Via het nette en ruime gemeenschappelijk trappenhuis wordt het appartement op de eerste verdieping bereikt. Vervolgens de hal met plaats voor de garderobe en meterkast. Vanuit de hal is er toegang tot de moderne badkamer voorzien van een zwevend toilet, inloopdouche, handdoek radiator, design wastafelmeubel, spiegel met verlichting en vloerverwarming. Aan de voorzijde van het appartement de lichte woonkamer met sfeervolle erker en fantastisch vrij uitzicht over vaarwater en het groen van het Rembrandtpark. De zijkamer is te betrekken middels de originele glas-in-lood deuren. Aangrenzend, aan de achterzijde van het appartement, ligt de ruime halfopen keuken voorzien van diverse SMEG-inbouwapparaten, zoals een vaatwasser, kookplaat (gas) en combi-oven/magnetron. De twee vaste bergkasten zijn ideaal voor de wasmachine/droger en de Cv-opstelling (2018). De slaapkamer is aan de achterzijde gelegen met een inloopkast. Zowel vanuit de keuken als de slaapkamer is er toegang naar het balkon. Het balkon ligt op het Oosten en heeft een diepe bergkast voor meer opslag. Het plafond, de vloer en wanden zijn optimaal mogelijk geïsoleerd, het appartement beschikt over een energielabel B! Verder beschikt het appartement nog over een separate berging op de zolderverdieping.
OMGEVING
De Postjeskade is gelegen in de West Indische buurt met karakteristieke jaren 20/30 uitstraling. Het is een rustige straat tussen de Hoofdweg en het Rembrandtpark. De straat heeft een breed trottoir en biedt voldoende parkeerruimte. De populaire wijk heeft zich de afgelopen jaren ontwikkeld tot een hippe en levendige buurt met gezellige cafés, eetgelegenheden, hippe koffiezaakjes en een diversiteit aan winkels. Onder andere Oslo Beers, Bar Kosta, Mundi, café Tweede Thuys, Patio Amsterdam, Bar Lusconi, Bartack zijn hier goede voorbeelden van. Het is daarom niet voor niets één van de meest gewilde woonomgevingen van West op dit moment. In de zomer is het heerlijk vertoeven, direct voor de deur BBQ-en aan het water of op je eigen boot! En in de winter kun je schaatsen voor de deur! De Food Hallen, de Kinkerstraat en de Overtoom zijn op loopafstand gelegen. En sportaccommodaties zoals David Lloyd en Sportplaza Mercator bieden, naast het park, mogelijkheden om te sporten. Een toplocatie in het groen met alles wat Amsterdam te bieden heeft op loop/fietsafstand!
BEREIKBAARHEID
Ook de bereikbaarheid van het appartement is zeer goed met een ruime keuze aan openbaar vervoer (buslijnen 15-N83-247 / tramlijn 7-17 / station Lelylaan) in de directe omgeving. Met de auto is de ring A10 binnen enkele minuten te bereiken en parkeren voor de deur is eerder regel dan uitzondering. Tevens zijn er een aantal laadpalen te vinden in de straat.
BIJZONDERHEDEN
- energielabel B
- oplevering per direct
- berging op zolderverdieping
- rustige straat met eenrichtingsverkeer
- houten vloer door gehele appartement
- vrij uitzicht over vaarwater en het park
- de erfpacht is afgekocht tot en met 30-04-2059
- ideaal gelegen m.b.t. de ring A-10 en uitvalswegen
- mogelijkheid om bootje aan te leggen voor de deur
- woonoppervlak conform NEN-2580 richtlijn gemeten
- o.a. renovatie trappenhuis op de planning voor 2026
- parkeren voor de deur is eerder regel dan uitzondering
- gesplitst in 20 appartementsrechten met vergunning in 2009
- volledig geïsoleerd, dubbele beglazing in kunststof/houten kozijnen
- ideaal gelegen m.b.t. winkels/OV/cafés/restaurants/terrassen/parken
- actieve en financieel gezonde vereniging van eigenaars professioneel beheerd
Deze informatie is door ons met de nodige zorgvuldigheid samengesteld. Onzerzijds wordt echter geen enkele aansprakelijkheid aanvaard voor enige onvolledigheid, onjuistheid of anderszins, dan wel de gevolgen daarvan. Alle opgegeven maten en oppervlakten zijn slechts indicatief.
*ENGLISH TEXT*
DESCRIPTION
Very charming three-room apartment with fantastic unobstructed views of Rembrandt Park, a spacious balcony, and an attic storage room. Postjeskade is a quiet one-way street located in the popular De Baarsjes district. Over the past years, De Baarsjes has developed into a lively, trendy neighborhood with a rich history — the perfect blend of peace, greenery, and urban energy. Truly one of the most attractive neighborhoods in Amsterdam! The apartment has been completely renovated in recent years, with a practical layout, and is ready to move into. It is part of a professionally managed, active, and financially healthy homeowners’ association (VvE). The location, right next to Rembrandt Park and within walking distance of numerous shops, public transport, cozy cafés, terraces, and restaurants, is simply fantastic. In short: a move-in-ready apartment in a highly sought-after location!
LAYOUT (see floor plan)
The apartment is accessed via the neat and spacious communal stairwell on the first floor. Upon entering, there is a hallway with space for a coat rack and the fuse box. From the hallway, there is access to the modern bathroom, equipped with a wall-mounted toilet, walk-in shower, heated towel rail, designer vanity with illuminated mirror, and underfloor heating. At the front of the apartment is the bright living room with a charming bay window and stunning views over the canal and the greenery of Rembrandt Park. The adjacent side room can be included via original stained-glass sliding doors. At the rear of the apartment lies the spacious semi-open kitchen, fitted with various built-in SMEG appliances including a dishwasher, gas cooktop, and combi oven/microwave. Two built-in storage cupboards are ideal for the washer/dryer and central heating system (2018). The bedroom is also at the rear and includes a walk-in closet. Both the kitchen and the bedroom provide access to the balcony, which faces east and features a deep storage cabinet for additional space. The ceiling, floors, and walls have been optimally insulated, and the apartment has an energy label B! Additionally, there is a separate private storage room on the attic floor.
SURROUNDINGS
Postjeskade is located in the West-Indische neighborhood, characterized by its charming 1920s and 1930s architecture. It’s a quiet street between Hoofdweg and Rembrandt Park, with a wide sidewalk and ample parking. The popular area has grown into a trendy and vibrant neighborhood filled with cozy cafés, restaurants, hip coffee spots, and a wide variety of shops. Examples include Oslo Beers, Bar Kosta, Mundi, Café Tweede Thuys, Patio Amsterdam, Bar Lusconi, and Bartack. It’s no surprise that this is currently one of the most desirable living areas in Amsterdam-West. In summer, you can BBQ right in front of your door by the water or enjoy time on your own boat. In winter, you can ice skate just outside! The Foodhallen, Kinkerstraat, and Overtoom are all within walking distance. Sports facilities like David Lloyd and Sportplaza Mercator, along with the park, provide plenty of options for fitness and recreation. A prime location surrounded by greenery, with everything Amsterdam has to offer within walking or biking distance!
ACCESSIBILITY
The apartment is also very well connected, with numerous public transport options nearby (bus lines 15, N83, 247 / tram lines 7 and 17 / Lelylaan Station). The A10 ring road is just minutes away by car, and parking in front of the door is more often the rule than the exception. Several EV charging stations are also available on the street.
FEATURES
- energy label B
- quiet one-way street
- immediate availability
- private storage on top floor
- possibility to moor a small boat in front
- ground lease paid off until April 30, 2059
- wooden flooring throughout the apartment
- unobstructed views over the water and park
- easy on-street parking, usually without issue
- excellent access to A10 and other main roads
- renovation of the stairwell is scheduled for 2026
- building legally divided into 20 apartment rights in 2009
- living area measured in accordance with NEN-2580 standard
- active and financially sound homeowners’ association professional managed
- fully insulated, with double glazing in both wooden and plastic window frames
- ideally located near shops, public transport, cafés, restaurants, terraces, and parks
This information has been compiled with due care. However, we accept no liability for any inaccuracies, omissions, or the consequences thereof. All listed dimensions and surface areas are indicative only.
Overdracht
- Vraagprijs
- € 498.000 k.k.
- Status
- Verkocht
- Aanvaarding
- Per direct beschikbaar
- Bijdrage VvE
- € 131,55 per maand
Bouw
- Object type
- Bovenwoning (appartement)
- Soort bouw
- Bestaande bouw
- Bouwjaar
- 1935
- Soort dak
- Samengesteld dak bedekt met bitumineuze dakbedekking en pannen
Oppervlakte en inhoud
- Woonoppervlakte
- 56 m²
- Inhoud
- 175 m³
- Externe bergruimte
- 4 m²
- Gebouwgeb. buitenruimte
- 5 m²
Indeling
- Aantal kamers
- 3 kamers (2 slaapkamers)
- Aantal badkamers
- 1 badkamer
- Badkamervoorzieningen
- Inloopdouche, toilet, vloerverwarming, en wastafelmeubel
- Aantal woonlagen
- 1 woonlaag
- Gelegen op
- 1e woonlaag
- Voorzieningen
- Mechanische ventilatie en TV kabel
Energie
- Energielabel
- B
- Isolatie
- Volledig geïsoleerd
- Verwarming
- Cv-ketel
- Warm water
- Cv-ketel
- Cv ketel
- Hr-intergas (gas gestookt combiketel uit 2018, eigendom)
Buitenruimte
- Ligging
- Aan park, aan rustige weg, aan vaarwater, aan water, in woonwijk en vrij uitzicht
- Balkon / dakterras
- Balkon aanwezig
Bergruimte
- Schuur / berging
- Box
Parkeergelegenheid
- Soort parkeergelegenheid
- Betaald parkeren, openbaar parkeren en parkeervergunningen
VvE checklist
- Inschrijving KvK
- Ja
- Jaarlijkse vergadering
- Ja
- Periodieke bijdrage
- Ja (€ 131,55 per maand)
- Reservefonds aanwezig
- Ja
- Onderhoudsplan
- Ja
- Opstalverzekering
- Ja
Energieverbruik in Amsterdam
Energielabel deze woning
Energielabel B
Publicatie energielabel:
Stroomverbruik per jaar
(Gemiddelde appartement in Amsterdam)
Gasverbruik per jaar
(Gemiddelde appartement in Amsterdam)
* Cijfers zijn afkomstig van het CBS en bedoeld als indicatie en kunnen verschillen voor deze woning
Indicatie hypotheeklasten
Eigen inleg:
Spaargeld / overwaarde
Rente:
Laagste 10-jaars rente
Laagste 10-jaars rente
2,76% - Centraal Beheer Groen... - NHG
2,98% - Centraal Beheer Groen... - 80%
Laagste 20-jaars rente
3,19% - Centraal Beheer Groen... - NHG
3,31% - Centraal Beheer Groen... - 80%
Laagste 30-jaars rente
3,34% - Centraal Beheer Groen... - NHG
3,47% - Centraal Beheer Groen... - 80%
Hypotheek:
Bruto maandlasten: € 0 p/m
Netto maandlasten: € 0 p/m
Hoe berekenen we dit?
Het rentepercentage is gebaseerd op de laagste 10-jaars vaste rente voor één hypotheekdeel. De vermelde rente (2.98% zonder NHG) is gecontroleerd op 18-08-2025. Deze berekening is gebaseerd op een annuïteitenhypotheek die volledig wordt afgelost, waarbij de maandlasten gedurende de gehele looptijd gelijk blijven. De werkelijke rente en netto maandlasten kunnen variëren, afhankelijk van uw persoonlijke situatie en de hypotheekverstrekker. Raadpleeg een financieel adviseur voor een nauwkeurige berekening en advies. Aan deze berekening kunnen geen rechten worden ontleend; het dient enkel als indicatie.
Documentatie
Kadastrale kaart
Leefomgeving
Plattegronden PDF
BAG uittreksel
Brochure
WOZ waarderapport
Akte-van-levering-20-10-2017
Akte-van-splitsing-27-08-2009
Bereken-uw-overstap-of-afkoop-rekentool
Eigendomsinformatie-sloten-noord-holland-m-1942-a6
Energielabel
Lijst-van-zaken-postjeskade-137-1
Meetrapport-postjeskade-137-i-amsterdam
Nvm-vragenlijst-appartement
Splitsingstekening
Technischekeuring-2017
Vve-afrekening-exploitatieresultaat-2023-2024-naar-verdeelsleutel-en-appartementsrecht
Vve-agenda-20-05-2025
Vve-algemene-informatie-vve-versie-ymere-d-d-1-11-2021
Vve-balans-23-05-2025
Vve-begroting-2025-2026
Vve-brochure-samen-zorgen-we-voor-uw-vve-2024
Vve-contract-dak-klomp
Vve-jaarverslag-2021-2022
Vve-jaarverslag-2022-2023
Vve-jaarverslag-2023-2024
Vve-notulen-12-12-2023
Vve-notulen-13-10-2022
Vve-notulen-16-10-2023
Vve-notulen-20-03-2024
Vve-offerte-keuren-hijsbalken
Vve-polis-opstalverzekering-van-bbreda-prolongatie-per-1-7-2024
Vve-rapportage-mjop
Vve-rrs-contract-ontstoppen-riolering
Vve-verbouwingen-binnen-de-vereniging-van-eigenaars
Vve-yver-beheerovereenkomst
Woz-waardeloket-postjeskade-137-1-amsterdam
Bezichtiging
Bod uitbrengen
Waardebepaling
Zoekopdracht
Alles downloaden
Zonnegrenzen bekijken
Op de kaart
Inwoners in Amsterdam
Cijfers voor postcodegebied 1058
- Totaal aantal inwoners
- 15955 inwoners
- Mannen
- 47%
- Vrouwen
- 53%
Inwoners in Amsterdam
Cijfers voor postcodegebied 1058
- tot 15 jaar
- 13%
- 15 tot 25 jaar
- 10%
- 25 tot 35 jaar
- 47%
- 45 tot 65 jaar
- 20%
- 65 en ouder
- 10%
Huishoudens in Amsterdam
Cijfers voor postcodegebied 1058
- Eenpersoons zonder kinderen
- 53%
- Meerpersoons zonder kinderen
- 26%
- Huishoudens zonder kinderen
- 79%
Huishoudens in Amsterdam
Cijfers voor postcodegebied 1058
- Huishoudens met één kind
- 7%
- Huishoudens met meerdere kinderen
- 15%
- Huishoudens met kinderen
- 22%
Woningen in Amsterdam
Cijfers voor postcodegebied 1058
- Woningen voor 1945
- 83%
- Woningen tussen 1945 en 1965
- 3%
- Woningen tussen 1965 en 1975
- 7%
- Woningen tussen 1975 en 1985
- 1%
- Woningen tussen 1985 en 1995
- 1%
Woningen in Amsterdam
Cijfers voor postcodegebied 1058
- Woningen tussen 1995 en 2005
- 1%
- Woningen tussen 2005 en 2015
- 6%
- Woningen na 2015
- 1%
- Huurwoningen
- 60%
- Koopwoningen
- 30%
Overige in Amsterdam
Cijfers voor postcodegebied 1058
- Gemiddelde WOZ waarde
- € 453.000,-
- Personen onder de 65 met uitkering
- 7%
Overige in Amsterdam
Cijfers voor postcodegebied 1058
- Adressen per km²
- 8094
- Stedelijkheid (schaal 1 op 5)
- 100%
Korte feiten over Amsterdam
Amsterdam is de hoofdstad van Nederland. De stad, in het Amsterdams ook Mokum genoemd (afkomstig uit het Jiddisch), ligt in de provincie Noord-Holland, aan het IJ, het Noordzeekanaal en de monding van de Amstel. De stad ligt in de gelijknamige gemeente Amsterdam en heeft 873.338 inwoners (1 januari 2021), Groot-Amsterdam telt 1.459.402 inwoners.
Thuis in Vastgoed
Indien u vragen heeft of u wilt een bezichtiging inplannen, dan kunt u gebruik maken van het formulier hiernaast. Er zal daarna op korte termijn contact met u worden opgenomen.
Contact opnemen
Thuis in Vastgoed
Het best beoordeelde makelaarskantoor van Amsterdam Oost en omgeving
Bent u op zoek naar een woning in Amsterdam of wilt u uw woning verkopen? Dan helpen wij u graag verder. Door onze locatie aan het Pireausplein in het Oostelijk Havengebied weten wij precies wat er speelt op en rond het KNSM-eiland maar ook in de rest van Amsterdam kennen wij de markt op ons duimpje. Gekoppeld aan onze persoonlijke service en benadering maakt dat wij beoordeeld zijn tot beste makelaarskantoor van Amsterdam-Oost en omgeving en wel met een 9,4!
Naast verkoopbemiddeling is Thuis in Vastgoed al sinds de start actief op het gebied van aankoopbegeleiding en hebben er inmiddels honderden mensen via ons kantoor een nieuwe woning gevonden. Uiteraard is Thuis in Vastgoed ook actief op het gebied van taxeren en aangesloten bij het NRVT en het NWWI. Voor diverse andere specialismen zoals verhuur, erfpachttaxaties, particuliere beleggingsadviezen en expatservices kunt u ook terecht bij Thuis in Vastgoed.
Wilt u weten wat we voor u kunnen betekenen? Dan bent u bij Thuis in Vastgoed, makelaarskantoor in Amsterdam, aan het juiste adres. Neem eens contact op met ons voor een vrijblijvend advies!
THUIS IN VASTGOED
GOED GEVOEL
Nieuwste reviews
-
Zeeburgerkade 706
We’re extremely satisfied with the service provided. From the very beginning, the preparation was thorough and accurate, and the listing was...
-
Rapenburgerstraat 83 4
thuis in vastgoed Estate agent Highly recommended . Elly has great knowledge of the market very experienced . Every task was manageable , fr...
-
Eerste Van der Helststraat 41 1
Migiel heb ik gekozen uit meerdere makelaars die is gesproken heb. Onmiddelijk viel mij zijn deskundige en direct ter zake stijl op. Geen mo...